S&O Maritime Services delivers world-class ship design solutions tailored specially for the marine and offshore industries. By integrating innovation, engineering excellence, and strict adherence to regulatory standards, we develop efficient, sustainable, and cost-effective vessel designs that comply with international classification requirements and client-specific operational needs. Our multidisciplinary team brings comprehensive expertise across a wide range of vessel types, including cargo ships, tugs, barges, offshore support vessels (OSVs), workboats, special-purpose craft etc. From concept development and basic design to detailed design and class drawings, we provide integrated services that cover every phase of the design lifecycle. By using advanced modeling tools and the latest design software, we ensure precision, performance optimization, and smooth coordination with clients, shipyards and classification societies.

Our works

S&O Maritime Recent work

40T BOLLARD PULL TUG

  • Vessel: 40T bollard pull tug
  • Scope: Production engineering from client provided basic design
    Project fabrication support
  • Client: Hoogly Cochin Shipyard Ltd, India
  • Length: 29.4 m (incl. fender)
  • Breadth: 11.8 m
  • Depth: 5.1 m
  • Power: 2686 kw (total)
  • Speed: 12 knots
  • Crew: 12
  • Class: Indian Register of Shipping
  • Software: Cadmatic
S&O Maritime Recent work

20M LONG ALUMINIUM CREW BOAT

  • Vessel: 20m long Aluminium Crew boat
  • Scope: Basic and production engineering
  • Client: VU Marine, UAE
  • Length: 19.98 m
  • Breadth: 5.6 m
  • Depth: 2.63 m
  • Power: 1100 hp (total)
  • Speed: 18 knots
  • Pax: 20
  • Class: Bureau Veritas
  • Software: Shipcontructor
S&O Maritime Recent work

62T BOLLARD PULL TUG

  • Vessel: 62T bollard pull tug
  • Scope: Production engineering from client provided basic design
    Project fabrication support
  • Client: Udupi Cochin Shipyard Ltd, India
  • Length: 33.0 m (incl. fender)
  • Breadth: 11.9 m
  • Depth: 5.4 m
  • Crew: 12
  • Power: 3600 kw (total)
  • Speed: 12.5 knots
  • Class: Indian Register of Shipping
  • Software: Aveva Marine
S&O Maritime Recent work

PURSE SEINER VESSEL

  • Vessel: Purse seiner vessel
  • Scope: Basic design
  • Client: Udupi Cochin Shipyard Ltd, India
  • Length: 23.50 m
  • Breadth: 6.90 m
  • Depth: 3.40 m
  • Speed: 10 kn
  • Cargo: 50T + 20T Ice
  • Class: Indian Register of Shipping
S&O Maritime Recent work

RO-PAX VESSEL FOR LAKE VICTORIA

  • Vessel: Ro-pax vessel for Lake Victoria
  • Scope: Basic to production engineering
  • Client: Southern Engg Co (SECO), Kenya
  • Length: 97.55m
  • Breadth: 17.50 m
  • Depth: 4.60 m
  • Dead weight: 1300 T
  • Speed: 10 kn
  • Vehicle: 21 Trailers / 1000 T
  • Pax: 60
  • Class: Bureau Veritas
  • Software: Aveva Marine
S&O Maritime Recent work

ARTICULATED TUG BARGE (ATB) TUG

  • Vessel: Articulated tug barge (ATB) tug
  • Scope: Basic design
  • Client: IMC Naval Architects, Australia
  • Length: 53.40 m
  • Breadth: 16.00 m
  • Depth: 6.80 m
  • Speed: 21 kn
  • Bollard pull: 110 Ton
  • Class: American Bureau of Shipping
  • Software: Ansys
S&O Maritime Recent work

15M MOORING BOAT

  • Vessel: 15m mooring boat
  • Scope: Basic design
  • Client: Southern Engg Company (SECO), Kenya
  • Length: 14.50 m
  • Breadth: 4.45 m
  • Depth: 2.00 m
  • Speed: 10.5 kn
  • Bollard pull: 8 Ton
  • Class: Bureau Veritas
S&O Maritime Recent work

ACID BARGE

  • Vessel: Acid Barge
  • Scope: Basic and detail engineering
  • Client: Summit Maritime / KSINC, India
  • Length: 40.60 m
  • Breadth: 8.50 m
  • Depth: 2.75 m
  • Deadweight : 300 tons
  • Cubic capacity : 230 m3
  • Speed: 7 knots
  • Class: Indian Register of Shipping
S&O Maritime Recent work

DIESEL ELECTRIC CUTTER SUCTION DREDGER 28” SUCTION, 100M LONG

  • Vessel: Diesel Electric Cutter Suction Dredger 28” suction, 100m long
  • Scope: Production Engineering from client provided basic package
  • Client: Motas Dredging Solutions, The Netherlands
  • Length: 366 ft
  • Breadth: 56 ft
  • Depth: 12 ft, Dredging depth : 10 to 82 ft
  • Suction size : 28”
  • Installed power : 11485 hp, Cutter power : 1340 hp
  • Ladder pump power : 4700 hp
  • Software :AVEVA / Shipconstrauctor
S&O Maritime Recent work

205 PAX FERRY FOR LAKE VICTORIA

  • Vessel: 205 pax Ferry for Lake Victoria
  • Scope: Basic design
  • Client: Songoro Marine / APT Global
  • Length: 57.43 m
  • Breadth: 11.00 m
  • Depth: 4.00 m
  • Passengers : 205
  • Vehicles : 2 cars + 3 trucks (15T)
  • Cargo hold : 350 Tons
  • Speed : 11 knots
  • Crane : 1.5 T
  • Class : Bureau Veritas
S&O Maritime Recent work

COAL BARGE FOR LAKE VICTORIA

  • Vessel: Coal barge for Lake Victoria
  • Scope: Basic design
  • Client: Songoro Marine / APT Global
  • Length: 64.20 m
  • Breadth: 12.50 m
  • Depth: 3.60 m
  • Cargo capacity: 1300 Tons
  • Cargo: Coal
  • Speed : 7 knots
  • Class : Bureau Veritas
S&O Maritime Recent work

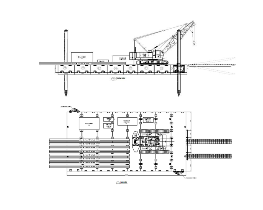
MODULAR SPUD BARGE

  • Vessel: Modular spud barge
  • Scope: Basic to Production Engineering
  • Client: Wagner Biro, UAE / APT Global
  • Length: 23.78 m
  • Breadth: 12.00 m
  • Depth: 1.70 m
  • Pontoon sizes: 12 x 3.0 (7 nos); 12 x 2.6 – 1 no)
  • Spud: 14m long x 2 nos x 508mm dia
  • Operating depth: 10 m
  • Class: Bureau Veritas
  • Software: AutoDesk Inventor
S&O Maritime Recent work

JETTY PONTOON WITH GANGWAY

  • Vessel: Jetty pontoon with Gangway
  • Scope: Basic and Production engineering
    fabrication support
  • Client: Hoogly Cochin Shipyard, India
  • Length: 30.00 m
  • Breadth: 7.00 m
  • Depth: 1.60 m
  • Quantity: 2 nos
  • Gangway: 13 m long x 2.00 m wide
  • Class: IR Class
  • Software: Shipconstructor
S&O Maritime Recent work

SPLIT HOPPER BARGE

  • Vessel: Split hopper barge
  • Scope: Basic hull design
  • Client: Motas Dredging Solutions, Netherlands
  • Length: 62.00 m
  • Breadth: 12.50 m
  • Depth: 4.50 m
  • Hopper capacity: 1200 m3
  • Deadweight: 1800 Tons
  • Class: Lloyds Register